物件詳細 店舗(建物一部) 弘前市
/ detailsDETAILS
店舗(建物一部) 稲田2丁目 花田店舗1階
情報更新日:2026-05-09
弘前駅城東口から徒歩7分!飲食店向き‼
- 所在地
- 青森県 弘前市 稲田2丁目
- 種別
- 店舗(建物一部)
- 月額賃料
- 77,000円(税込)/月
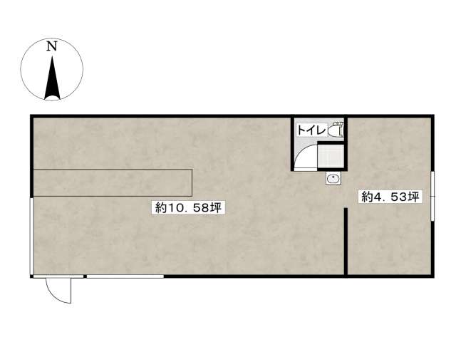
- 専有面積
- 50㎡
- バルコニー面積
- ─
- 共益費
- ─
- 管理費
- ─
- 敷金
- 2ヶ月 154,000円
- 礼金
- ─
本物件の内容や画像等は全て現況優先となります。
各画像は参考図となります。
| 交通機関 | JR奥羽本線 弘前駅 徒歩7分 | ||
|---|---|---|---|
| 学区 | |||
| 詳細間取 | |||
| 周辺施設 | さくら野弘前店:1000m | ||
| 駐車場 | 敷地内 無料 | 建物構造 | 木造 地上2階建 |
| 駐車場複数台 | 可5台まで | 主要採光方向 | 不明 |
| 仲介料 | 77,000円 (1ヶ月相当) | 周辺環境 | |
| 保険又は共済 | 要加入 | 入居可能日 | 即入居可 |
| 保証金 | 築年月 | 昭和53年6月 | |
| 権利金 | 取引態様 | 仲介 | |
| 保証会社 | 利用必須 新日本信用保証㈱ 初回保証委託料:月額賃料等の100% | ||
| その他費用 | |||
| トイレ | 和式 独立 水洗 | 風呂 | 無 |
| 設備 | 上水道設備(公営) 下水道設備 給湯(ガス) LPガス 照明器具 | ||
| 備考 | 普通賃貸借 ※同業他社による客付け可(手数料割合:自社50%/他社50%) | ||
| 取扱業者 |
(有)協和不動産 青森県知事免許(7)第2573号 青森県弘前市外崎2-1-3 TEL:0172-28-1166 FAX:0172-26-1456 (公社)青森県宅地建物取引業協会会員 東北地区不動産公正取引協議会加盟事業者 |
||

